

CONSEPT
好きなこと、なんでも表現できて、大切な仲間たちと思う存分くつろげる。
家まるごとガレージの新空間に、「自分らしさ」を詰め込んで、家族との時間も、自分の時間も目一杯楽しもう。
THE HOUSE GARAGE PROJECTが、全員、楽しい。そんなライフスタイルをお届けします。
COMPACT PLAN

FLAT CUSTOM PLAN

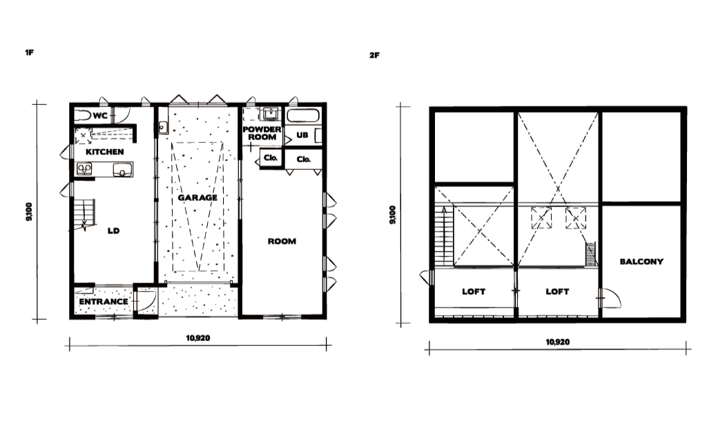
HOUSE TYPE / FLAT

全員、たのしい。そんな家。
「GORDON MILLER」らしく素材感を生かしシンプルに仕上げた塗り壁の外壁と、落ち着きのあるモスグリーンの配色に。
大きな格子窓以外は、デザイン要素をあえて省くことでガレージの存在を際立たせている。
GARAGE
開放感のある大胆な間取りの中心になるのは、家の真ん中に配置した約28㎡の大きなガレージ。
奥行も7.7mあり、ガレージと居住スペースのつながりある空間を実現。
車好きにはもちろん、ライフスタイルに合わせて使い方はさまざま。


LIVING / DINING
サッシを開け放つとガレージと一体感のある広々としたアウトドアリビングに。仲間や家族とのチルスペースとして使ったり、趣味のためのフリースペースとしても。
中2階にはロフトスペースを設け、ギアをコレクションしたり、ワークスペースとしても使える。

PLAN
延床面積
104.75㎡(31.68坪)
床面積
1F/93.16㎡(28.18坪)
2F/11.59㎡(3.5坪)
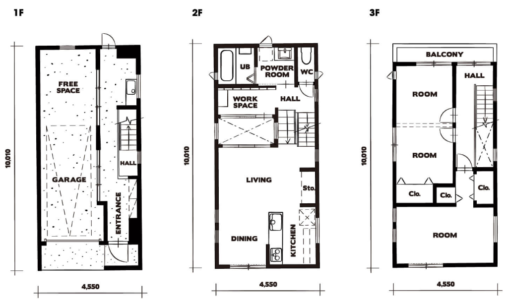
HOUSE TYPE / COMPACT

「自分らしさを」詰め込んで。
限られた敷地でも建てられるビルトインガレージを採用した、コンパクトな3階建てプラン。外観や内装はFLATタイプ同様、シンプルな塗り壁、モルタル、ウッド、アイアン、セメント板などの素材を生かし、シンプルに仕上げた。
WORK SPACE/ LIVING
家族と過ごせるリビングダイニングを2階に設置。
開放感のあるスキップフロアを採用しているので、同じく2階にあるワークスペースからガレージを眺められるようになっている。
また3階にはメインのベッドルームと2部屋を配置している。


GARAGE/ FREE SPACE
ガレージと各フロアがつながるシームレスな空間。
エントランスとの仕切りには大きなサッシを採用し、床を一続きの土間にすることで、空間に広がりを持たせ、趣味のスペースとしても楽しめる作りになっている。

PLAN
延床面積
122.53㎡(37.06坪)
床面積
1F/40.31㎡(12.19坪)
2F/41.81㎡(12.64坪)
3F/40.41㎡(12.22坪)

WHAT IS BRAND?

ガレージユースやカーライフを前提とした機能的なデザインのガレージウェアや
ファニチャー、アウトドアギア、ツールなどのさまざまなプロダクトを通して、
愛車のある“ガレージ”から拡張していくライフスタイルブランド。
