

CONSEPT
“和”の魅力を自由に解釈した新しい“和”の家。
昔ながらの懐かしい“和”のデザインに「SOU•SOU」のポップさがコラボレーションした、現代のライフスタイルに合う“和”の家。
「SOU•SOU」のテキスタイルを用いた暖簾をくぐり、通り庭の石畳のアプローチに立つ。梁が見える屋根を見上げれば、そこには空を仰げる天窓が。
室外を室内のように感じさせる通り庭から土間、玄関に入り、右手には“離れ”をイメージした和室。
和室奥の床の間と縁側で、昔ながらの和を感じながらも「SOU•SOU」の壁紙がポップな“和”の空間を演出します。

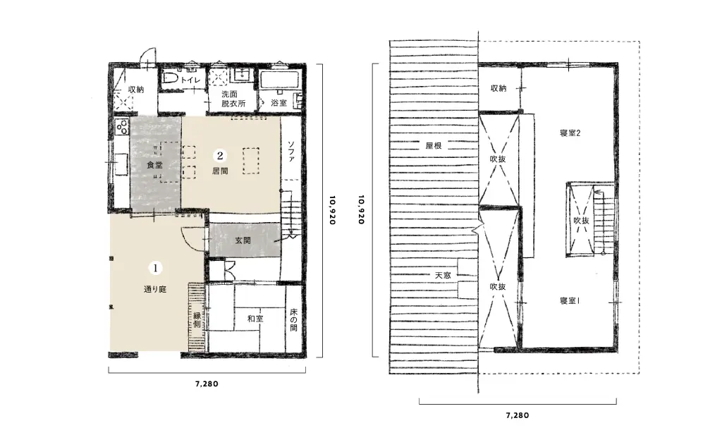
通り庭
縁側と和室に面した、玄関へつながるアプローチ。
大きな梁を見せる天井は、軒先を低く抑えることで品の良い空間に。
食堂は通り土間とし、伝統的な和を意識している。
居間と和室
玄関を介して配置された居間と和室。造作のソファは階段へつながるデザイン。居間と食堂の段差はダイニングチェアとなり、機能性と動線を兼ねている。


PLAN
延床面積
100.19㎡(30.30坪)
床面積
1F/59.62㎡(18.03坪)
2F/40.57㎡(12.27坪)

